「まず実績」地方ゼネコンのZEBチャレンジ アサヒエンジニアリング社屋(前編)
- 19/12/02
- トリナ・ソーラー・ジャパン ニュース,個人のお客様・施工店様お役立ち情報,太陽光発電関連ニュース・市場動向
土木工事を手掛けるアサヒエンジニアリング(浜松市)の新社屋が2018年11月に完成した。1次エネルギー消費量を正味ゼロとする「ネット・ゼロ・エネルギー・ビル(ZEB)」の建物だ。
延べ面積600m2の建物は、シンプルな長方形平面を持つ2階建て。東南側に配したエントランスまわりの大きなガラス面が、凹凸のない箱型の外観にアクセントを与える。事務所スペースと応接室を2階に配置し、大会議室、作業員休憩室のほかロッカールームや書庫といったバックヤードを1階にまとめている。約30人の従業員が勤務するが、昼間は外に出ている人も多い。

アサヒエンジニアリング社屋の南東側外観。入り口の階段ホールまわりに大きな開口を設けた(写真:須山建設)

2階の階段ホール。日差しを取り込んだ明るい空間を通って事務所スペースに向かう(写真:須山建設)
「当社は1985年に創業し、倉庫を改造したオフィスを長く使っていた。執務環境は厳しく、夏はエアコンをかけたうえで扇風機を回し、冬はエアコンにストーブという状態。それに比べると、新社屋の環境は劇的に向上した。2階に事務所があると夏暑いのではというイメージを持っていたが、断熱性能が高いのでそういう感覚は全くない。消費電力も大幅に下がった」。アサヒエンジニアリングの金原秀明代表取締役は、新社屋の感想をそう語る。
同社は、浜松市に拠点を置く総合建設会社・須山建設のグループ会社の1つで、地表を掘削せずに埋設管を敷設する「推進工事」に特化した事業を展開している。新社屋の設計と施工は、須山建設が担当した。
新社屋は、JR浜松駅から北西に6kmほどの距離にある航空自衛隊浜松基地の南西側に位置する。敷地はもともと須山建設の従業員用宿舎などが建っていた区画を再構成したものだ。
新社屋とその西側に並ぶ倉庫の屋根全面に合計59.78kWの太陽光発電パネル(パワーコンディショナー38.5kW)を設置して、創エネルギーを含めた1次エネルギー消費量削減率を144%まで高めた。創エネルギーを除く削減率は61%だ。
「これからのZEBのプロトタイプとなる建物を目指して、一般的な技術を用いた普及版ZEB設計の確立を目指した」(設計・施工を手掛けた須山建設の小野寺司設計・調達ブロック設計グループ課長)。須山建設は以前から省エネやBCP(事業継続計画)を視野に入れた提案を積極的に行ってきたが、ZEBを手掛けた経験はなかった。グループ会社で新社屋建設の計画が持ち上がった機をとらえて、初めてのZEBに取り組んだ。
設計に際して掲げた目標はいくつかある。創エネルギーを含めた1次エネルギー消費量削減率100%を超える完全ZEBの達成やZEB補助金を得ることに加えて、基地を発着する飛行機の騒音への対策も必須だった。費用対効果を勘案しつつ、建物の外皮性能の向上、高効率な設備の採用、大容量の創エネを組み合わせた建物とした。

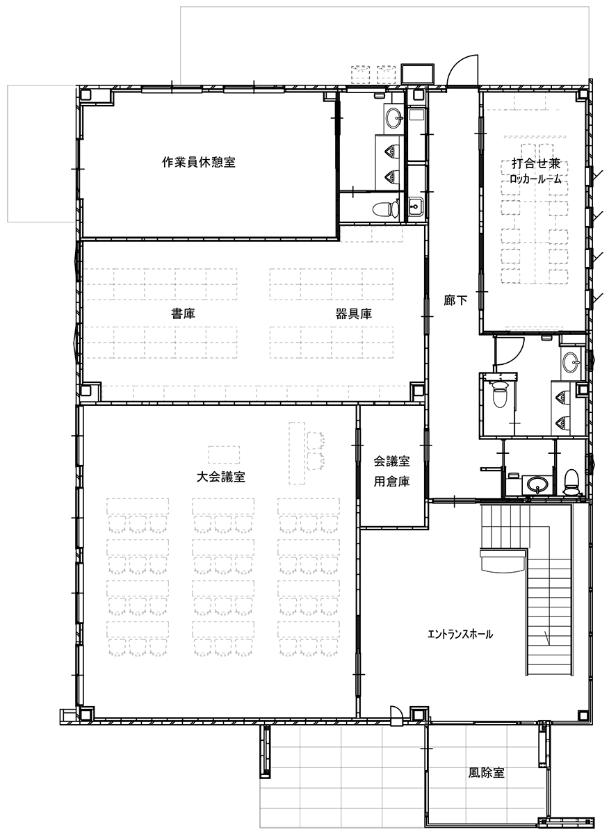
1階平面図

2階平面図
アサヒエンジニアリング社屋の1階、2階平面図(資料:須山建設)
このうち外皮仕様は次のように設定している。
最も大きな日射を受ける屋根まわりでは3層の断熱を施した。ダブル折板の間に厚さ100mmのグラスウールを充填したうえ厚さ65mmのウレタンを吹き付け、天井の上には厚さ100mmのグラスウールを敷いた。ALC版仕上げの外壁面は、スタッド内に厚さ65mmでウレタンを吹き付けた。床下には厚さ50mmの押し出し法ポリスチレンフォームを施工した。窓は、一般的なビル用のアルミサッシを用いてLow-Eアルゴンガス入り複層ガラスをはめ込んだ。
須山建設が手掛ける通常のビルに比べて重装備とした断熱の仕様は、防音性能の向上にも寄与する。「以前の建物ではよく聞こえていた飛行機の音も、新社屋では気にならない」と金原代表取締役は評価する。実際、平日午後の取材中も飛行機の音にはほとんど気づかなかった。
標準的な設備機器を組み合わせる
凹凸のないシンプルな総2階建てという建物の規模と平面形状は、建物内の空調負荷を減らすのに有効だ。約60kWの太陽光発電設備の設置も、年間日射量の多い浜松市という地域性や周囲に日射を遮るものがない立地条件を生かしたものといえる。
逆に、ZEB化に際して不利な要素となっているのは建物の配置だ。従業員が主に滞在する2階の事務室は南北に長く、窓は西南に面している。西日対策は不可欠だった。ここでは2階の事務所と1階大会議室に小さめの窓を並べ、室内側に手動のブラインドを設置した。2階ではブラインドを上下に2分割し、それぞれ角度調整できるようにしている。

2階の事務所スペース。上下に2分割したブラインドはそれぞれ角度を調整できる(写真:須山建設)
BCPへの対応としては、非常時用の小型発電機を用意した。普段は自家消費して残りを売電している太陽光発電も、非常時には切り替えてコンセント電源として使用できるようにしている。
19年1月から本格稼働した新社屋は、冬と夏を1回ずつ体験した。「冬はエアコンを切っている時間帯が長く、天気が悪い日につける程度。ZEB化のメリットが大きかった。夏はエアコンの設定温度を27℃から28℃くらいにして運用していた」とアサヒエンジニアリング総務部の榑林宏紀氏は振り返る。
19年1月から6月までの実際の消費電力はどうだったか。6カ月間に消費した電力は、3月まで行っていた工事の仮設電気使用量も含めて合計1万2864kWh。旧社屋時代の使用量を新社屋の規模に換算した2万1957kWhに比べて、41%削減した計算になる。太陽光発電による創エネルギー量2万9751kWhを含めると、旧社屋からの削減率は176%となる。
費用対効果については、次のように試算している。
工事に際してZEB仕様にするための投資と太陽光発電設備の設置で3250万円を費やした。そのうちの1300万円は環境省の18年度「ZEB実現に向けた先進的省エネルギー建築物実証事業」の補助金で賄った。差し引くと、ZEB化に伴う投資額のアップ分は1950万円になる。
これに対し、予測される電気料金の旧社屋と新社屋の年間差額は60万円、太陽光発電の年間売電額は125万円。両者を合計した年間の電気料金削減額は185万円となり、約10.5年で初期投資の向上分を回収できる計算だ。
「この建物で得る具体的な運用実績を元に、顧客に対し、今後はよりきめ細やかな省エネ提案に結び付ける」。須山建設設計・調達ブロック設計グループの安井孝浩グループリーダーは、普及版ZEBの提案に向けた手応えを語る。

アサヒエンジニアリングの新社屋の2019年1月から同6月にかけての実績値(資料:須山建設)
アサヒエンジニアリング社屋の建築概要データ
•所在地:静岡県浜松市
•地域区分:6地域
•建物用途:事務所等
•構造・階数:鉄骨造・地上2階建て
•延べ面積: 600m2
•発注者:アサヒエンジニアリング
•設計・施工者:須山建設
•完成:2018年11月

アサヒエンジニアリング社屋のZEBデータ(資料:環境共創イニシアチブ)
(日経 xTECH「省エネNext」公開のウェブ記事を転載)
これからの時代は企業として省エネ、創エネ、畜エネへの取り組みが求められます。グローバルのトップ企業トリナ・ソーラーの高品質で高パフォーマンスの製品の中から最適なパネルをお選びください。





